広島県 広島市の
リフォーム&リノベーション専門店の
クリーンハウス工業です🏡
いつも 現場ブログを ご覧いただき
誠にありがとうございます 🐶💕

皆さん、こんにちは🤗
まだまだ寒さが続きますね!
そんな今日ですが
弊社が昨年末に施工した
アパート一室の「内装工事」について
ご紹介させていただこうと思います♪
これから、賃貸物件の
入退去シーズンになりますので
是非、参考になれば嬉しい限りです🏠
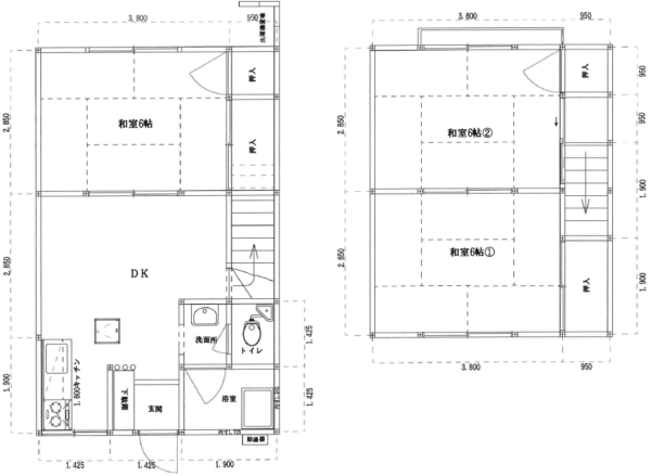
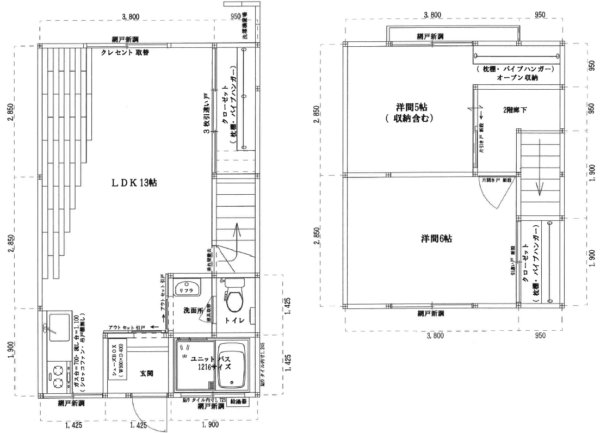
まずは、
今回間取りが変わっておりますので
図面から見て行きましょう👀
【図面】変更前

【図面】変更後

最近の流行りの傾向として
LDKが広く、和室より洋室を好む方が大半!
その流行りに併せて
弊社の社長がオーナー様にご提案し
すぐ入居が決まるよう
色合いや使用する材料も考えました💪🏼
図面だけではイメージしづらいですよね!
次は写真付きでご紹介します(^^♪
玄 関

玄関タイルは残したまま
レトロな感じから
膨張色の白基調で
スッキリ広々して見えますよね👀✨
また、シューズボックスの横に
スペースを作ることによって
物が置けるので、ここも良いですよね♪
洗 面 所


洗面台は綺麗に使っていただいては
いたものの
大分年数が経っておりましたので
両サイドに沢山収納出来る棚がり
洗面場所も広い物に変更しました🤗
浴 室

まず、浴槽の広さが約1.5倍に👀
また、最近ヒートショック
というワードをよく耳にしますよね👂
以前の浴室はタイルで
足裏がなかなか冷たかったと思います💭
ただ、変更した事で
以前より冷たさは感じないでしょう☝🏼
ト イ レ

お手洗いは
多機能(ウォシュレット・暖房便座 など)
が備わった便器に変身🚽
あの座った瞬間に「ヒィッ」と
なる事も無くなりますね👏
1階 LDK



1階はもともと
DKと和室の2部屋でしたが
間を取り除き大きく広いLDKに変身!
フローリングと壁クロスを
明るい色にする事で
更に広く見えますよね👀
色の効果すごいですよね✨
また、アクセントクロスを入れる事で
オシャレ感も倍増です💗
階段・2階 廊下


2階はもともと
階段を上がるとすぐに部屋で
奥の部屋に行くには
手前の部屋を必ず通らなければ
なりませんでした😅
ただ、廊下を設ける事で
2部屋がそれぞれ独立し
お子様などいらっしゃる方には
子供部屋としても
最低限のプライベートが守られ
とてもいいアイディアですよね✨
そんな住む方の導線も
しっかり考えた弊社の社長です💪🏼✨
2階 洋間×2部屋




1階のお部屋と
色味を合わせました♪
また、時代に併せて
コンセントや
テレビジャックの増設も行いました📺🔌
コンセントって多ければ多いほど
嬉しいですよね(笑)
いかがでしたでしょうか❓
時代に合わせた間取りの考えや
デザイン・色味など
住んでいただくには
まず気に入ってもらえないと中々入居も
難しいですよね🤔💭
また、間取りを考える際には
住んだ後の生活をいかに
イメージ出来るか というのも大切です☝🏼
「中々入居が決まらない」
「もっと今風にしたい」
などお考えの方は
是非一度ご連絡ください!
ご希望に併せたご提案をさせていただきます❗

(有) クリーンハウス工業 広島市中区西川口町11-19 Unity舟入 本社ビル2階
広島でリフォーム工事をするなら(有)クリーンハウス工業へ
まずは無料診断・お見積で リフォーム工事の第一歩を踏み出してみませんか



