広島県 広島市の
リフォーム&リノベーション専門店の
クリーンハウス工業です🏡
いつも 現場ブログを ご覧いただき
誠にありがとうございます 🐶💕

皆さんこんにちは🤗
日に日に寒さが増してきていて
冬が近づいてきていますね⛄
私は、つい最近にやっと重い腰を上げて
衣替えをしました😅
風邪やウィルス系の病気が流行っていますので
皆さん気を付けてくださいね☝🏼
さて、本題に入りますが
今日は9月に施工した
お部屋の「内装リニューアル工事」について
皆さんにご紹介出来たらと思います💭
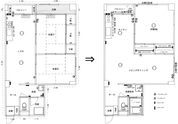
今回の工事は、間取りを大きく変更しました!
↓ こちらです ↓

従来は、
LDKと和室2部屋の2LDKでした。
ただ、最近は和室を好む方が減って来ているので
和室2部屋を撤去し
LDKを広く、また洋室1部屋を区切り
広い1LDKに大変身しました✨
実際の写真付きでご紹介します🎵
施 工 前

施 工 後

続いては
各箇所ごとに見て行きましょう🔍
玄 関・シ ュ ー ズ B O X

渋い茶色から
清潔感のある白色のシューズBOXに変更!
ト イ レ

洗 面 所

床のフローリングを
女性から人気が出そうな
木目調に変えました✨
また、洗面化粧台は
沢山収納出来るように
棚が多いものに取替ました✋
浴 室

昭和を感じさせるような浴室から
シンプルで真っ白の浴室に変身✨
浴槽も広くなり
ゆったりと湯船に浸かれますね♪
ベ ラ ン ダ

ベランダは洗濯物などを干すので
少しでも広い方がいいですよね!👚
以前は両サイドに置いてあった室外機を
片方に寄せ、上下になり
スペースを確保で出来るようになりました👏
和 室 → 洋 室

今回の工事で
和室→洋室へと変身✨
以前は
2面から出入りが出来ていましたが
出入口を1つに絞る事で
・物を置きやすくなり
様々なレイアウトを楽しめる
・プライベート空間が保てる
・隙間風が入りにくくなる
といったメリットばっかりです🤗
皆さんはお部屋の中を見て
何に注目して選ばれますか❓
・雰囲気
・間取り
・日当たり
・色使い
など色々な観点での見方があると思います。
弊社では、今回のような工事を行う際は
オーナー様としっかり打ち合わせをして
「どのような工事をすると
入居者様に入っていただけるか」
「今の流行りのご提案」など
様々な視点でご
提案をさせていただいております。
もし、
・空き部屋がずっとある
・もう何年も工事をしていない
・劣化が進んでいる
などお困りの方がいらっしゃいましたら
お気軽にご相談くださいね👀
本日も最後まで読んでいただき
ありがとうございました😊

(有) クリーンハウス工業
広島市中区西川口町11-19 Unity舟入 本社ビル2階
広島でリフォーム工事をするなら(有)クリーンハウス工業へ
まずは無料診断・お見積で リフォーム工事の第一歩を踏み出してみませんか❓



